자격증 필기 기출문제



컴퓨터그래픽스기능사 필기 기출문제(해설) 및 CBT 2007년07월15일(4회)(4491)

최강 자격증 기출문제 전자문제집 CBT : www.comcbt.com


전자문제집 CBT란?

종이 문제집이 아닌 인터넷으로 문제를 풀고 자동으로 채점하며 모의고사, 오답 노트, 해설까지 제공하는
무료 기출문제 학습 프로그램으로 실제 상설검정에서 사용하는 OMR 형식의 CBT를 제공합니다.


최신 컴퓨터그래픽스기능사 필기 기출문제 : [다운로드]

1과목 : 산업디자인 일반


1. 아이디어 발상 방법의 하나인 브레인스토밍에 관한 잘못된 설명은?
     가. 집단회의에서 참가자의 연쇄반응에 의한 발상기법이다.
     나. 전형적인 자유 연상법이다.
     다. 하나의 새로운 아이디어만을 구하는데 목적이 있다.
     라. 일단 제출된 아이디어는 비판하지 않는다.

     정답 : []
     정답률 : 90%
     <문제 해설>
일정 주제 아래, 10명 이내의 인원이 자유로운발언 중 새 아이디어를 얻는 방법(오즈번이 고안)

2. 다음 중 신문광고의 광고란(廣告欄) 광고에 속하지 않는 것은?
     가. 상품광고
     나. 기업광고
     다. 영업물광고
     라. 돌출광고

     정답 : []
     정답률 : 79%

3. 인테리어디자인에서 바닥의 마감재료 중 가장 부적합한 것은?
     가. 석재
     나. 목재
     다. 아스타일
     라. 석고보드

     정답 : []
     정답률 : 81%
     <문제 해설>
석고보드는 사무실이나 학교등의 천정 마감재로 쓰입니다.
[해설작성자 : 성문컴]

4. 공간배치를 위한 시스템 가구 사용시의 특징 설명으로 틀린 것은?
     가. 모듈화 되어 다양한 배치가 가능하다.
     나. 기능에 따라 다양하게 이동성과 융통성이 크다.
     다. 공간 성격의 변화에 대한 이동성과 융통성이 크다.
     라. 단일 공간을 상이한 기능의 공간으로 구획, 분할이 용이하지 않다.

     정답 : []
     정답률 : 84%

5. 편집디자인 작업과정 중 인쇄소에 원고를 넘기기에 앞서 문자 원고, 사진, 일러스트레이션 등의 지정단계는?
     가. 기획 회의 단계
     나. 취재, 자료 수집 단계
     다. 편집, 레이아웃 단계
     라. 인쇄 및 검품, 납품 단계

     정답 : []
     정답률 : 87%

6. 1944년 윌리엄 고든에 의해 개발된 아이디어 창출법으로 은유법과 유추법을 사용하여 창조적인 아이디어를 끌어내는 방법은?
     가. 입출력법
     나. 체크리스트법
     다. 시네틱스
     라. 매니지먼트

     정답 : []
     정답률 : 77%
     <문제 해설>
시네틱스법 : 아이디어 창출법으로 은유법과 유추법을 사용하여 창조적인 아이디어를 끌어내는 방법으로 서로 다르고 관련성이 없어 보이는 요소를 합친다는 의미
[해설작성자 : 다음카페 한방합격]

시네틱스 : 서로 다르고 관련성을 찾아서 아이디어를 발상하는 방법
윌리엄 고든, 은유법 유추법 사용, 창조적 아이디어
[해설작성자 : 홧띵]

7. 고대국가의 건축에서 나타난 특징으로 볼 수 없는 것은?
     가. 거대함에서 비롯되는 기념비적 특성이 있다.
     나. 아치와 돔 양식을 주로 도입하였다.
     다. 기하학적 비례의 원리를 적용 시켰다.
     라. 강력한 통치 국가가 존재한다는 것을 과시하는 건축물이다.

     정답 : []
     정답률 : 64%
     <문제 해설>
고대 건축의 특징
-거대함, 기념비적특징
-기하학적 비례원리 적용
-강력한통치국가존재 과시하는 건축물
[해설작성자 : 홧띵]

8. 환경디자인의 의미와 거리가 먼 것은?
     가. 제품설계
     나. 조경설계
     다. 도시계획
     라. 실내설계

     정답 : []
     정답률 : 76%
     <문제 해설>
가는 하나의 물건에 대한 디자인이다.

9. 다음 중 포장 디자인의 기능과 가장 거리가 먼 것은?
     가. 보존성
     나. 편리성
     다. 상품성
     라. 기념비성

     정답 : []
     정답률 : 89%
     <문제 해설>
포장디자인 기능 : 보존성(보호성), 편리성, 상품성, 심미성, 구매의욕 고취, 재활용성
[해설작성자 : 다음카페 한방합격]

10. 앙리 반 데 벨데에 의해 사용된 곡선을 중심으로 장식적 양식과 화려한 색채를 사용하던 시기에 전 유럽을 풍미했던 양식은?
     가. 미술공예운동(Art and Crafts Movement)
     나. 아르누보(Art Nouveau)
     다. 바우하우스(BauHaus)
     라. 시카고파(Chicago school)

     정답 : []
     정답률 : 83%
     <문제 해설>
가. 미술공예운동(Art and Crafts Movement) : 윌리엄모리스, 수공업중심
나. 아르누보(Art Nouveau) : 벨기에/프랑스, 곡선을 중심으로 장식적 양식과 화려한 색채 사용
다. 바우하우스(BauHaus) : 독일 조형학교, 월터그로피우스
[해설작성자 : 다음카페 한방합격]

11. 다음 중 디스플레이의 조건으로만 성립된 것은?
     가. 대상물, 관객, 장소, 시기
     나. 관객, 교통, 공간, 도면
     다. 장소, 공간, 도면, 색상
     라. 공간, 도면, 건물, 관객

     정답 : []
     정답률 : 61%

12. 디자인의 요소에 해당 되지 않는 것은?
     가.
     나. 빛과 운동
     다. 개성
     라. 색채

     정답 : []
     정답률 : 64%

13. 게슈탈트(gestalt) 요인이 아닌 것은?
     가. 시각성의 요인
     나. 유사성의 요인
     다. 폐쇄성의 요인
     라. 근접성의 요인

     정답 : []
     정답률 : 75%
     <문제 해설>
게슈탈트의 4원칙 : 유사성, 근접성, 연속성, 패쇄성
[해설작성자 : 다음카페 한방합격]

14. 소비자 행동에 영향을 미치는 요인과 거리가 먼 것은?
     가. 문화적 요인
     나. 사회적요인
     다. 개인적 요인
     라. 도덕적 요인

     정답 : []
     정답률 : 81%
     <문제 해설>
소비자행동 : 문화적, 사회적, 개인적, 심리적, 환경적
[해설작성자 : 다음카페 한방합격]

15. 서로 다른 부분의 조합에 의하여 생기는 것으로, 시각상 힘의 강약에 의한 형의 감정 효과인 것은?
     가. 통일
     나. 리듬
     다. 반복
     라. 대비

     정답 : []
     정답률 : 66%

16. 다음 중 이념적 형태에 해당하는 것은?
     가. 자연형태
     나. 인위형태
     다. 현실형태
     라. 순수형태

     정답 : []
     정답률 : 69%
     <문제 해설>
이념적형태 : 추상형태, 순수형태
현실형태 : 자연형태, 인위형태
[해설작성자 : 다음카페 한방합격]

17. 기업의 제품 경쟁에서 판정자 역할을 하는 사람은?
     가. 생산자
     나. 소비자
     다. 디자이너
     라. 기업주

     정답 : []
     정답률 : 91%
     <문제 해설>
생산자, 디자이너, 기업주 => 제공자

소비자 => 판정자
[해설작성자 : 달달하옹]

18. 랜더링에 대한 설명이 잘못 된 것은?
     가. 완성될 제품에 대한 예상도이다.
     나. 실물이 가진 형태, 색채, 재질감을 충실히 표현한다.
     다. 제시용 랜더링이란 부품의 구조와 기능을 설명할 목적으로 쓰인다.
     라. 최종 디자인을 결정하려는 표현 전달의 단계이다.

     정답 : []
     정답률 : 66%

19. 다음 중 구매시점 광고를 의미하는 용어는?
     가. P.O.P
     나. Package
     다. DM
     라. PR

     정답 : []
     정답률 : 84%
     <문제 해설>
POP : 구매시점광고
DM : 개인 우편발송 광고
[해설작성자 : 다음카페 한방합격]

20. 실용성 또는 기능성과 관련되는 디자인의 조건은?
     가. 독창성
     나. 합목적성
     다. 심미성
     라. 경제성

     정답 : []
     정답률 : 88%
     <문제 해설>
가. 독창성 : 창작성
나. 합목적성 : 기능성, 실용성
다. 심미성 : 미적 디자인
라. 경제성 : 최소의 비용으로 최대의 효과
[해설작성자 : 다음카페 한방합격]

2과목 : 색채 및 도법


21. 위에서 내려다보는 조감도의 느낌을 주는 투시도법은?
     가. 1점 투시
     나. 2점 투시
     다. 3점 투시
     라. 등각법

     정답 : []
     정답률 : 73%
     <문제 해설>
1소점투시 : 대상물이 화면에 평행하게 노힌 투시상법
2소점투시 : 화면에 대해서 물체의 수직면들이 일정한 각도를 가지고 위 아래면은 수평
3소점투시 : 높은빌딩을 위에서 내려다 볼 경우 알맞은 투시도
[해설작성자 : 다음카페 한방합격]

22. 투상도의 제3각법에 대한 설명으로 잘못된 것은?
     가. 기준이 눈으로부터 눈, 화면, 물체의 순서로 되어 있다.
     나. 미국에서 발달하여 빠른 속도로 보급 되었다.
     다. 한국산업규격의 제도 통칙에 이를 적용하였다.
     라. 유럽에서 발달하여 독일을 거쳐 우리나라에 보급되었다.

     정답 : []
     정답률 : 72%
     <문제 해설>
3각법은 우리나라 제도의 일반원칙으로 미국을 중심으로 보급되어 사용됨
1각법이 영국을 기준으로 보급되어 사용
[해설작성자 : 다음카페 한방합격]

23. 어두워지면 가장 먼저 사라져서 보이지 않는 색은?
     가. 노랑
     나. 빨강
     다. 녹색
     라. 보라

     정답 : []
     정답률 : 80%
     <문제 해설>
난색 계열의 색은 제일 먼저 사라지게 된다.

24. 다음 중 채도가 가장 낮은 영역을 나타내는 수식어는?
     가. 선명한
     나. 흐린
     다. 밝은
     라. 진한

     정답 : []
     정답률 : 86%

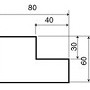
25. 다음 도형은 무엇을 구하기 위한 과정인가 ?

    

     가. 원주에 근사한 직선 구하기
     나. 원에 내접하는 정오각형 그리기
     다. 원에 내접하는 반원형 그리기
     라. 한 변이 주어진 정오각형 그리기

     정답 : []
     정답률 : 87%

26. 다음 척도 중 축척에 해당되는 것은?
     가. 5/1
     나. 2/1
     다. 1/1
     라. 1/2

     정답 : []
     정답률 : 78%

27. 배색의 효과 중 채도와 면적 간의 관계에 있어, 균형이 맞고 수수한 느낌이 들도록 배색하는 방법은?
     가. 저채도의 색을 좁은 면적에, 고채도의 색을 넓은 면적에 사용한다.
     나. 저채도의 색과 고채도의 색을 같은 크기의 면적에 사용한다.
     다. 저채도의 색을 넓은 면적에, 고채도의 색을 좁은 면적에 사용한다.
     라. 저채도의 색은 왼쪽에, 고채도의 색은 오른쪽에 사용한다.

     정답 : []
     정답률 : 70%

28. 다음 색 중 배경색이 남색일 때, 진출성이 가장 강한 것은?
     가. 노랑
     나. 자주
     다. 보라
     라. 청록

     정답 : []
     정답률 : 85%

29. 다음 투시도에서 암시도(시점이 하단에 있는 경우)는?

    

     가. 2, 3, 9
     나. 4, 8, 1
     다. 5, 6, 7
     라. 4, 5, 6

     정답 : []
     정답률 : 68%

30. 구멍의 치수, 가공법 또는 품번 등을 기입할 때 쓰이는 선은?
     가. 화살표
     나. 지시선
     다. 치수선
     라. 치수보조선

     정답 : []
     정답률 : 48%

31. 전개가 복잡한 조립도에서 많이 사용되는 단면 도법은?
     가. 온 단면도(전 단면도)
     나. 한쪽 단면도(반 단면도)
     다. 부분 단면도
     라. 치수보조선

     정답 : []
     정답률 : 52%
     <문제 해설>
아래와 같은 오류 신고가 있었습니다.
여러분들의 많은 의견 부탁 드립니다.
추후 여러분들의 의견을 반영하여 정답을 수정하도록 하겠습니다.
참고로 정답 변경은 오류 신고 5회 이상일 경우 수정합니다.

[오류 신고 내용]
3번 아닌가요? 복잡한 조립도라는데
[해설작성자 : 필기 준비중]

[관리자 입니다.
다른 문제집 확인 가능한분 계시면 확인 부탁 드립니다.
신고시 출판사명까지 기제 부탁 드립니다.]

[오류신고 반론]
출판사 영진닷컴에서 나온 이기적 컴퓨터그래픽스 운용기능사 2023년 기본서에서
온단면도에 해설로는 물체의 중심선을 경계로 반으로 절단하여 나타내는 단면도로
전개가 복잡한 조립도에서 많이 사용된다.
[해설작성자 : 김샛별]

[오류신고 반론]
1번 맞습니다.
[해설작성자 : comcbt.com 이용자]

32. 다음 중 3개의 축선이 서로 만나서 이루는 세 각들 중에서 두 각을 같게, 나머지 한 각은 다르게 그리는 투상도는?
     가. 등각투상도
     나. 부등각투상도
     다. 사투상도
     라. 전개도

     정답 : []
     정답률 : 62%
     <문제 해설>
아래와 같은 오류 신고가 있었습니다.
여러분들의 많은 의견 부탁 드립니다.
추후 여러분들의 의견을 반영하여 정답을 수정하도록 하겠습니다.
참고로 정답 변경은 오류 신고 5회 이상일 경우 수정합니다.

[오류 신고 내용]
부등각투상도는 3면 각도가 모두 다른 각을 가지는 투상도인데
두 각이 같고, 한 각이 다르면 2등각투상도 아닌가요?
[해설작성자 : 한양직업전문학교에이스]

[오류신고 반론]
네이버 검색 결과 3개의 축선이 서로 만나서 이루는 세 각들 중에서 두 각을 같게, 나머지 한 각은 다르게 그리는 투상도라고 검색하면 부등각 투상도로 나옵니다.
그럼으로 정답은 2번 부등각 투상도인 것 같습니다
[해설작성자 : 홧띵]

33. 주위에 있는 색의 영향으로 인접색에 가깝게 보이는 현상은?
     가. 색의 동화 현상
     나. 연변 대비 현상
     다. 보색 잔상 현상
     라. 등색 잔상 현상

     정답 : []
     정답률 : 76%

34. 어떤 특정색채가 주변 색채의 영향으로 본래의 색과는 다른 색채로 지각되는 경우를 색채의 대비효과라 한다. 다음과 같은 조건에서 지각되는 대비는?

    

     가. 계시대비
     나. 동시대비
     다. 색상대비
     라. 명도대비

     정답 : []
     정답률 : 47%
     <문제 해설>
계시대비 : 계속대비라고도 부르며, 어떤 색을 보고 난 후 다른 색을 보았을 경우, 먼저 본 색의 영향으로 나중에 보는 색이 다르게 보이는 현상
동시대비 : 두 가지 색 이상을 한꺼번에 볼 때, 색채가 달라져 보이는 현상
ㄴ색상대비 : 서로 다른 색들의 영향으로 색상의 차이가 크게 보이는 현상
ㄴ명도대비 : 명도가 서로 다른 색들의 영향으로 밝은 색은 더 밝게, 어두운 색은 더 어둡게 보이는 현상
[해설작성자 : 내일이시험이네요ㅠ]

35. 오스트발트 표색계의 색채 개념은?
     가. Red + Green + Blue = 100%
     나. White + Black + Color = 100%
     다. Red + Yellow + Blue = 100%
     라. White + Blue + Green = 100%

     정답 : []
     정답률 : 63%

36. 다음 색의 3속성에 대한 설명 중 옳은 것은?
     가. 두 색 중에서 빛의 반사율이 높은 쪽이 밝은 색이다.
     나. 색의 강약, 즉 포화도를 명도라고 한다.
     다. 감각에 따라 식별되는 색의 종류를 채도라 한다.
     라. 그레이 스케일(Gray scale)은 채도의 기준 척도로 사용된다.

     정답 : []
     정답률 : 58%

37. 색채를 통한 인간의 생활, 작업의 분위기, 일의 능률을 향상시키기 위하여 각 색의 기능을 조절하는 것은?
     가. 색채조절
     나. 색채미학
     다. 색채심리
     라. 색채관리

     정답 : []
     정답률 : 64%

38. 신인상파 화가의 점묘화는 무슨 혼합인가?
     가. 회전혼합
     나. 병치혼합
     다. 가산혼합
     라. 감산혼합

     정답 : []
     정답률 : 85%

39. 자극이 사라진 후 원자극과 정반대의 상이 보이는 잔상 효과는?
     가. 부의 잔상
     나. 정의 잔상
     다. 정지 잔상
     라. 변화잔상

     정답 : []
     정답률 : 75%

40. 표준 20색상환에서 청록색의 보색은?
     가. 빨강
     나. 노랑
     다. 보라
     라. 주황

     정답 : []
     정답률 : 63%
     <문제 해설>
색상대비는 색상환에서 반대편, 마주보는 색이다.
빨강 - 청록
노랑 - 남색
보라 - 연두
주황 - 파랑
[해설작성자 : 와비]

3과목 : 디자인 재료


41. 다음 중 한지의 용도에 따른 분류에 해당하는 것은?
     가. 화선지
     나. 닥종이
     다. 송엽지
     라. 유목지

     정답 : []
     정답률 : 74%

42. 지류의 표면가공방식이 아닌 것은?
     가. 오버프린트
     나. 비닐칠
     다. 비닐필름 붙이기
     라. 녹말풀 바르기

     정답 : []
     정답률 : 57%

43. 다음의 재료 중 색상의 수가 풍부하며, 색채도 선명하고 건조가 빠른 장점이 있어 패션 일러스트레이션, 실내디자인, 디스플레이, 특히 제품디자인 실무에 많이 사용되는 것은?
     가. 유화 물감
     나. 파스텔
     다. 포스터 컬러
     라. 마커

     정답 : []
     정답률 : 70%

44. 다음 중 셀룰로스계 수지 접착제를 만들 때 주로 사용되는 용제는?
     가. 암모니아
     나. 아세톤
     다. 수산화나트륨
     라. 산화마그네슘

     정답 : []
     정답률 : 51%

45. 다음 중 합성수지 도료는?
     가. 유성 에나멜
     나. 주정 도료
     다. 알키드 수지 도료
     라. 캐슈계 도료

     정답 : []
     정답률 : 47%
     <문제 해설>
합성 수지도료 : 알키드계, 아크릴계, 아미노계, 열경화 아크릴계, 불포화 폴리에스터계, 에폭시계, 우레탄계, 페놀계, 비닐계, 실리콘계 등
천연수지 도료 : 옻, 캐슈게도료, 유성에나멜, 주정도료 등
수성도료 : 에멀젼도료, 수용성베이킹수지도료
① 천연수지·합성수지 또는 연청질과 건성유를 혼합하여, 나프타 등의 용제로 희석한 유성니스를 전색제로 하는 도료
④ 캐슈열매껍질에서 추출한 액과 포말린의 축합물을 주성분으로 하는 도료
[해설작성자 : 홧팅]

46. 에어브러시(air Brush) 에 관한 설명 중 틀린 것은?
     가. 거칠고 대담한 표현에 가장 적합하다.
     나. 공기의 압력을 이용해서 잉크나 물감을 내뿜어 그려진다.
     다. 사실적이고 환상적인 일러스트레이션 표현에 알맞은 기법이다
     라. 가장 중요한 것은 콤프레서와 스프레이건의 취급법이다.

     정답 : []
     정답률 : 66%

47. 다음 중 일반적인 금속재료의 특징이 아닌 것은?
     가. 상온에서는 고체 상태이다.
     나. 색채가 다양하지 않다.
     다. 이온화했을 때 양이온이 된다.
     라. 일반적으로 비중이 매우 작다

     정답 : []
     정답률 : 72%
     <문제 해설>
금속은 비중이 크다는 단점이 있다
[해설작성자 : 별]

48. 현상과 인화 과정이 따로 필요하지 않고 촬영 후에 즉시 결과를 볼 수 있는 필름은?
     가. 매트릭스 필름
     나. 폴라로이드 필름
     다. 엑타크롬 필름
     라. 리버설 필름

     정답 : []
     정답률 : 86%

49. 평소 작업 습관을 바꿈으로써 포토샵에서의 작업속도와 성능을 향상시킬 수 있는 방법으로 적절하지 않은 것은?
     가. 채널과 레이어의 사용을 가급적 줄인다.
     나. 스케치 과정의 작업은 고해상도로 실제크기보다 더 크게 제작한다.
     다. 퀵 에디트 기능을 사용한다.
     라. 개선된 인터페이스를 적극 활용한다.

     정답 : []
     정답률 : 77%

50. 컴퓨터그래픽스에서 컬러가 일정한 표준으로 나타나도록 장치의 컬러 상태를 조정하는 과정으로, 보다 전문적으로는 이미지의 입출력 및 처리 과정에서 사용하는 모든 하드웨어 장치의 컬러 특성을 일치시키는 것은?
     가. 컬러 싱크(Color Sync)
     나. 개멋(Gamut)
     다. 캘리브래이션(Calibration)
     라. 팬톤(Pantone) 컬러

     정답 : []
     정답률 : 68%

51. 래스터 이미지는 모든 것이 점으로 표시되므로 직선이 톱니 모양으로 우툴두툴하게 되는 현상이 일러난다. 이미지에서 톱니 모양의 거친 부분을 중간색으로 보완시켜 부드러운 직선으로 보이게 하는 기능은?
     가. 퐁 세이딩(Pong shading)
     나. 레이 트레이싱(Ray tracing)
     다. 안티 앨리어싱(Anti-aliasing)
     라. 이미지 프로세싱(Image processing)

     정답 : []
     정답률 : 81%

52. 3D 작업시 움직임을 사실적으로 표현하기 위하여 움직이는 개체를 흐릿하게 표현하고자 할 때 사용하는 기법은?
     가. 안티 앨리어싱(Anti-aliasing)
     나. 모션 블러(Mothion blur)
     다. 메타 볼(Meta ball)
     라. 로토스코핑(Rotoscoping)

     정답 : []
     정답률 : 76%

53. 벡터 이미지에 관한 설명으로 옳은 것은?
     가. 확대했을 때 모자이크와 같이 뚜렷한 영영이 보이게 된다.
     나. 벡터방식의 대표적인 프로그램은 포토샵이다.
     다. 무수히 많은 픽셀들이 모여서 이미지를 표현하는 방식이다.
     라. 수학적 해석방식을 취해 확대하더라도 변형되어 보이지 않는다.

     정답 : []
     정답률 : 70%

54. 다음 중 멀티미디어의 개념이 아닌 것은?
     가. 출판, 신문과 같이 종이 미디어(Paper Media)에서 발전된 개념이다.
     나. 독립적으로 존재해온 여러 미디어를 하나로 통합시키면서 등장한 말이다.
     다. 사운드(sound)와 영상(video)을 디지털 파일로 출력할 수 있다.
     라. 네트워크를 통하여 양방향화 되어 정보와 통신, 방송을 진화시키고 있다.

     정답 : []
     정답률 : 60%

55. 전자 출판에 있어서 그림 이미지의 필름 출력 및 인쇄과정에서 고려해야 할 요소 중 틀린 것은?
     가. 도트 개인(Dot Gain)의 수치(퍼센트)를 미리 설정한다.
     나. GCR(Gray Component Replacement, 회색구성성분대체) 조절이 미리 필요하다.
     다. UCR(Under color removal, 바탕색 제거) 과정이 color correction때 필요하다.
     라. 인쇄될 용지에 상관없이 printing ink setup의 값은 항상 일정하게 부여된다.

     정답 : []
     정답률 : 72%

56. 벡터 이미지 파일제작에 사용되며, 점과 핸들바(조정막대)를 조정하여 곡선을 그리거나 편집하는 방식은?
     가. Point
     나. Nurbs
     다. Polygon
     라. Bazier

     정답 : []
     정답률 : 62%

57. 다음 중 컴퓨터 입력 전용 장치가 아닌 것은?
     가. 태블릿(Tablet)
     나. 라이트 팬(Lignt pen)
     다. 자기디스크(Magnetic Disk)
     라. 디지타이저(Digitizer)

     정답 : []
     정답률 : 72%

58. 하프톤 스크리닝(Halftone Screening)에 관한 설명으로 틀린 것은?
     가. 컴퓨터는 그라데이션 이미지를 일정한 색의 작은 점으로 나눈다.
     나. 회전혼합과 같은 효과로 다양한 회색을 만들 수 있다.
     다. 점의 크기가 작으면 작을수록 좋은 출력물을 얻을 수 있다.
     라. 무채색의 그라데이션은 검정색 잉크만으로 프린트 될 수 있다.

     정답 : []
     정답률 : 48%
     <문제 해설>
하프톤 스크리닝은 병치혼합을 기본으로 설정한다.

59. VGA(Video Graphic Adapter) 또는 비디오 카드라고도 불리며, 컴퓨터의 디지털 정보를 모니터에 알맞게 디지털 신호로 바꾸어 화면에 나타나는 컬러 수와 해상도를 결정해 주는 장치는?
     가. 그래픽 소프트웨어
     나. 그래픽 보드
     다. 중앙처리장치
     라. 프린터

     정답 : []
     정답률 : 74%

60. 여러 개의 단면 형상을 배치하고 여기에 껍질을 입혀 3차원 입체를 만드는 방법은?
     가. 스키닝(skinning)
     나. 스위핑(sweeping)
     다. 블렌딩(blending)
     라. 라운딩(rounding)

     정답 : []
     정답률 : 56%


정 답 지

1

2

3

4

5

6

7

8

9

10

11

12

13

14

15

16

17

18

19

20

21

22

23

24

25

26

27

28

29

30

31

32

33

34

35

36

37

38

39

40

41

42

43

44

45

46

47

48

49

50

51

52

53

54

55

56

57

58

59

60

컴퓨터그래픽스기능사 필기 기출문제(해설) 및 CBT 2007년07월15일(4회)을 이용해 주셔서 감사합니다.
컴퓨터그래픽스운용기능사, 기출문제, 기능사, 컴퓨터그래픽, 필기, 기출문제, 전자문제집, CBT, 온라인, 모의테스트, 모의고사



List of Articles
번호 제목 글쓴이 날짜 조회 수
11627 컴퓨터그래픽스기능사 필기 기출문제(해설) 및 CBT 2010년07월11일(4회)(4503) 좋은아빠되기 2025.11.25 2
11626 컴퓨터그래픽스기능사 필기 기출문제(해설) 및 CBT 2010년03월28일(2회)(4502) 좋은아빠되기 2025.11.25 2
11625 컴퓨터그래픽스기능사 필기 기출문제(해설) 및 CBT 2010년01월31일(1회)(4501) 좋은아빠되기 2025.11.25 2
11624 컴퓨터그래픽스기능사 필기 기출문제(해설) 및 CBT 2009년09월27일(5회)(4500) 좋은아빠되기 2025.11.25 1
11623 컴퓨터그래픽스기능사 필기 기출문제(해설) 및 CBT 2009년07월12일(4회)(4499) 좋은아빠되기 2025.11.25 2
11622 컴퓨터그래픽스기능사 필기 기출문제(해설) 및 CBT 2009년03월29일(2회)(4498) 좋은아빠되기 2025.11.25 0
11621 컴퓨터그래픽스기능사 필기 기출문제(해설) 및 CBT 2009년01월18일(1회)(4497) 좋은아빠되기 2025.11.25 1
11620 컴퓨터그래픽스기능사 필기 기출문제(해설) 및 CBT 2008년10월05일(5회)(4496) 좋은아빠되기 2025.11.25 1
11619 컴퓨터그래픽스기능사 필기 기출문제(해설) 및 CBT 2008년07월13일(4회)(4495) 좋은아빠되기 2025.11.25 1
11618 컴퓨터그래픽스기능사 필기 기출문제(해설) 및 CBT 2008년03월30일(2회)(4494) 좋은아빠되기 2025.11.25 1
11617 컴퓨터그래픽스기능사 필기 기출문제(해설) 및 CBT 2008년02월03일(1회)(4493) 좋은아빠되기 2025.11.25 1
11616 컴퓨터그래픽스기능사 필기 기출문제(해설) 및 CBT 2007년09월16일(5회)(4492) 좋은아빠되기 2025.11.25 2
» 컴퓨터그래픽스기능사 필기 기출문제(해설) 및 CBT 2007년07월15일(4회)(4491) 좋은아빠되기 2025.11.25 2
11614 컴퓨터그래픽스기능사 필기 기출문제(해설) 및 CBT 2007년04월01일(2회)(4490) 좋은아빠되기 2025.11.25 1
11613 컴퓨터그래픽스기능사 필기 기출문제(해설) 및 CBT 2007년01월28일(1회)(4489) 좋은아빠되기 2025.11.25 3
11612 컴퓨터그래픽스기능사 필기 기출문제(해설) 및 CBT 2006년10월01일(5회)(4488) 좋은아빠되기 2025.11.25 2
11611 컴퓨터그래픽스기능사 필기 기출문제(해설) 및 CBT 2006년07월16일(4회)(4487) 좋은아빠되기 2025.11.25 2
11610 컴퓨터그래픽스기능사 필기 기출문제(해설) 및 CBT 2006년04월02일(2회)(4486) 좋은아빠되기 2025.11.25 1
11609 컴퓨터그래픽스기능사 필기 기출문제(해설) 및 CBT 2006년01월22일(1회)(4485) 좋은아빠되기 2025.11.25 1
11608 컴퓨터그래픽스기능사 필기 기출문제(해설) 및 CBT 2005년10월02일(5회)(4484) 좋은아빠되기 2025.11.25 2
Board Pagination Prev 1 ... 380 381 382 383 384 385 386 387 388 389 ... 966 Next
/ 966